
1:風吹けば名無し : 2022/02/23(水)23:01:36.64 ID: r73vkV1b0.net
断熱性能にはこだわりたい
2:風吹けば名無し : 2022/02/23(水)23:02:07.29 ID: r73vkV1b0.net
クソ間取りという批判は受け付けます
3:風吹けば名無し : 2022/02/23(水)23:02:40.88 ID: r73vkV1b0.net
オープンリビングにしたい
4:風吹けば名無し : 2022/02/23(水)23:03:02.58 ID: r73vkV1b0.net
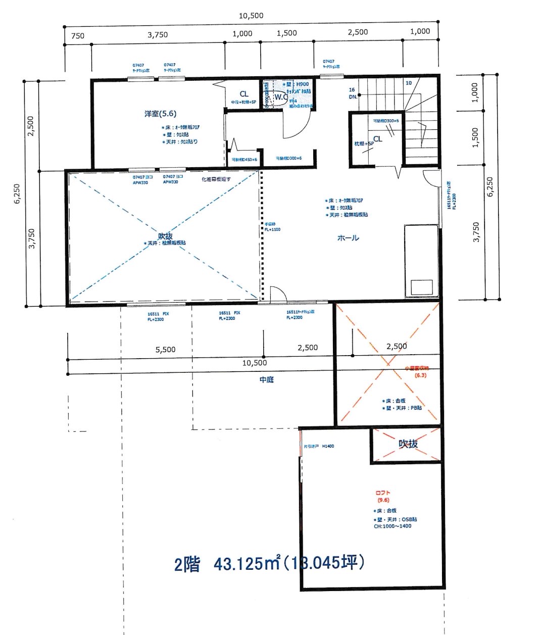
2階もっと上手く出来ないかな?
5:風吹けば名無し : 2022/02/23(水)23:03:12.74 ID: /de6VJ9td.net
出窓はやめとけ。
7:風吹けば名無し : 2022/02/23(水)23:03:32.84 ID: r73vkV1b0.net
>>5
なんで?
52:風吹けば名無し : 2022/02/23(水)23:10:44.79 ID: /de6VJ9td.net
>>7
出窓は結露の原因になったりする。気密を求めるならやめとけ。
54:風吹けば名無し : 2022/02/23(水)23:11:06.60 ID: r73vkV1b0.net
>>52
やめます!
156:風吹けば名無し : 2022/02/23(水)23:25:39.78 ID: DPank41m0.net
出窓マジでやめといた方がいい
雨の時うるさいわ
窓開けにくいし
いい事ない
159:風吹けば名無し : 2022/02/23(水)23:26:13.03 ID: r73vkV1b0.net
>>156
絶対に付けないことにするわ
6:風吹けば名無し : 2022/02/23(水)23:03:22.05 ID: r73vkV1b0.net
間取りのプロいませんか
8:風吹けば名無し : 2022/02/23(水)23:03:48.16 ID: r73vkV1b0.net
出窓は別にあってもなくてもいい
9:風吹けば名無し : 2022/02/23(水)23:04:06.12 ID: r73vkV1b0.net
無くした方がいい理由あるなら無くします
10:風吹けば名無し : 2022/02/23(水)23:04:26.30 ID: VsgCR2m30.net
採光不足で建築許可降りんわ
13:風吹けば名無し : 2022/02/23(水)23:05:00.39 ID: r73vkV1b0.net
>>10
何それ?光入れなきゃ行けないんか
252:風吹けば名無し : 2022/02/23(水)23:40:12.26 ID: r/7dQAcf0.net
>>10
誰の許可w
ちなみにワイは英検二級持ちw
11:風吹けば名無し : 2022/02/23(水)23:04:34.91 ID: r73vkV1b0.net
ちなみに5人家族で住む予定
12:風吹けば名無し : 2022/02/23(水)23:04:58.95 ID: w5B/GOcv0.net
風水には従ったんか?
18:風吹けば名無し : 2022/02/23(水)23:05:29.03 ID: r73vkV1b0.net
>>12
そんなオカルトに家の間取り左右させられないよ
14:風吹けば名無し : 2022/02/23(水)23:05:02.97 ID: LzbuYpUBd.net
5.7畳の人だけ可哀想🥺
15:風吹けば名無し : 2022/02/23(水)23:05:07.86 ID: bg2vOpmH0.net
階段無いから二階行けないやん
16:風吹けば名無し : 2022/02/23(水)23:05:21.30 ID: XdkMphFq0.net
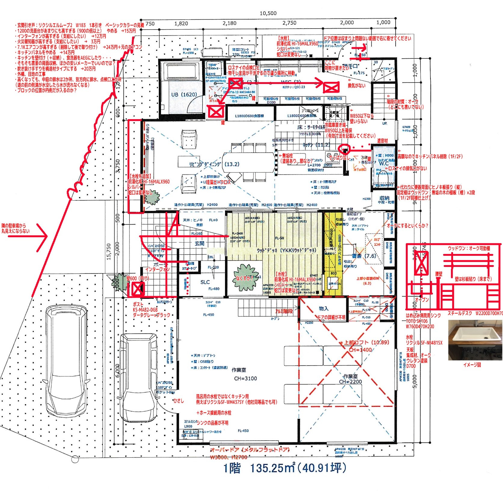
玄関とリビングの扉ない?寒そう暑そう
22:風吹けば名無し : 2022/02/23(水)23:05:55.95 ID: r73vkV1b0.net
>>16
断熱性にこだわりまくればいけないかな?
79:風吹けば名無し : 2022/02/23(水)23:14:42.09 ID: XdkMphFq0.net
>>22
玄関からのは無理ちゃうか?広いしエアコンの電気代もやばなりそう
89:風吹けば名無し : 2022/02/23(水)23:15:19.87 ID: r73vkV1b0.net
>>79
そっかぁ、じゃあ流石にどっかしら閉鎖するかなぁ
17:風吹けば名無し : 2022/02/23(水)23:05:27.73 ID: 2lW6vfRTa.net
トイレが足りない
27:風吹けば名無し : 2022/02/23(水)23:06:45.71 ID: r73vkV1b0.net
>>17
そう?2つあれば充分じゃない?
19:風吹けば名無し : 2022/02/23(水)23:05:50.01 ID: VJ9Eqq50M.net
二階何やこれ各部屋に収納スペース無くて一部屋にまとめるんか
24:風吹けば名無し : 2022/02/23(水)23:06:25.84 ID: r73vkV1b0.net
>>19
収納スペースは家具で作る感じにする
21:風吹けば名無し : 2022/02/23(水)23:05:55.68 ID: CZIytepb0.net
もちろんドリームハウスって建築番組に頼むよね?
25:風吹けば名無し : 2022/02/23(水)23:06:31.93 ID: Zy4lmdR/0.net
匠よべや
500万くらいでつくってくれるで
29:風吹けば名無し : 2022/02/23(水)23:07:01.02 ID: r73vkV1b0.net
>>25
流石に嘘だろ?
26:風吹けば名無し : 2022/02/23(水)23:06:39.88 ID: Hj9ukqRN0.net
リビングにトイレ隣接はやめとけ
31:風吹けば名無し : 2022/02/23(水)23:07:18.02 ID: r73vkV1b0.net
>>26
やっぱりそこダメかぁ
263:風吹けば名無し : 2022/02/23(水)23:41:41.99 ID: /pkfvPula.net
>>26
これだわ排泄音聞こえるぞ
28:風吹けば名無し : 2022/02/23(水)23:06:55.66 ID: sLt7f/lp0.net
収納部屋窓無し?
30:風吹けば名無し : 2022/02/23(水)23:07:11.40 ID: G1CKY17X0.net
デッドスペース多いな
34:風吹けば名無し : 2022/02/23(水)23:07:34.65 ID: r73vkV1b0.net
>>30
そうなんだよね、活かしきれてない
32:風吹けば名無し : 2022/02/23(水)23:07:21.84 ID: qeGX0zrAd.net
ぱっとみ木造じゃむりだけど何造でつくるつもりなんや
36:風吹けば名無し : 2022/02/23(水)23:07:58.69 ID: r73vkV1b0.net
>>32
CLTでもだめ?
35:風吹けば名無し : 2022/02/23(水)23:07:50.43 ID: sLt7f/lp0.net
2階部屋多過ぎトイレリビングは草
33:風吹けば名無し : 2022/02/23(水)23:07:34.53 ID: 5uuUQWfw0.net
1階に階段がない
38:風吹けば名無し : 2022/02/23(水)23:08:40.68 ID: RqpEiqux0.net
どうやって2階いくんや....
40:風吹けば名無し : 2022/02/23(水)23:08:58.10 ID: r73vkV1b0.net
言い忘れてたけど、倉とプレハブが別に建ってるから大きな収納はいらないと思ってる
41:風吹けば名無し : 2022/02/23(水)23:09:05.35 ID: sAFXMfnq0.net
2階部屋がくっつき過ぎて気が狂いそう
48:風吹けば名無し : 2022/02/23(水)23:10:26.30 ID: r73vkV1b0.net
>>41
でも5人家族だとこれが精一杯なんだ😭
42:風吹けば名無し : 2022/02/23(水)23:09:23.07 ID: 5uuUQWfw0.net
どっちが南かわからん
53:風吹けば名無し : 2022/02/23(水)23:10:57.34 ID: r73vkV1b0.net
>>42
多分画面下
58:風吹けば名無し : 2022/02/23(水)23:11:47.93 ID: 5uuUQWfw0.net
>>53
多分てなんだよ
お前んちだろ
69:風吹けば名無し : 2022/02/23(水)23:12:51.45 ID: r73vkV1b0.net
>>58
実家だから住んでたのもう10年以上前だしなんとなくや
44:風吹けば名無し : 2022/02/23(水)23:09:49.30 ID: 4Dpf2OdZd.net
風呂とトイレはまとめてエリア設定したほうがええんちゃう
45:風吹けば名無し : 2022/02/23(水)23:09:56.64 ID: r73vkV1b0.net
すまん、2階はなんでか反映されてないけどトイレの辺りからテレビのある所向かって伸びてる
46:風吹けば名無し : 2022/02/23(水)23:10:02.87 ID: fXENHJDK0.net
2階がゴミ
49:風吹けば名無し : 2022/02/23(水)23:10:27.71 ID: Q0zzC1+k0.net
1階の奥の水場LDKって書いてる所にトイレ入れた方がいい
これだと部屋から丸見えでオナラしても聞こえるわ
50:風吹けば名無し : 2022/02/23(水)23:10:33.06 ID: h+FOujGY0.net
これオーダーハウス的なやつ?
57:風吹けば名無し : 2022/02/23(水)23:11:40.68 ID: r73vkV1b0.net
>>50
そう
見積もり出す前にとりあえず自分でフリーソフトで作った
64:風吹けば名無し : 2022/02/23(水)23:12:14.75 ID: yTIYy4wW0.net
トイレって普通階層変わっても同じ位置にあるもんやないんか?
無駄に金かかりそうやけど
73:風吹けば名無し : 2022/02/23(水)23:13:35.20 ID: r73vkV1b0.net
>>64
たしかに
65:風吹けば名無し : 2022/02/23(水)23:12:19.60 ID: ItjymO8ea.net
収納を家具にするんやったら各部屋もうちょい大きい方がええぞ
収納部屋小さくして部屋デカくした方がええやろ
76:風吹けば名無し : 2022/02/23(水)23:13:59.70 ID: r73vkV1b0.net
>>65
やっぱり小さいか
74:風吹けば名無し : 2022/02/23(水)23:13:57.86 ID: atXMGqct0.net
1階
広いリビングでソファとテレビは隅に設置する意味がわからん。
トイレも落ち着かんやろし、風呂の前室はなに?
2階
共用スペース無駄に広すぎるし、ベランダないんか?
82:風吹けば名無し : 2022/02/23(水)23:14:54.02 ID: r73vkV1b0.net
>>74
確かに住みにする意味ないか
でっかい洗面所とベランダなしはヨッメの希望や!
75:風吹けば名無し : 2022/02/23(水)23:13:58.42 ID: z6Eswbn20.net
保険屋とか家庭訪問とかの親しく無い来客は玄関で対応するんか?
99:風吹けば名無し : 2022/02/23(水)23:17:09.57 ID: r73vkV1b0.net
>>75
実は2世帯住宅で、もう一個両親の家がくっついてんねん
そして間に応接間がまた35坪くらいあるからそういう人はそこに行くんや
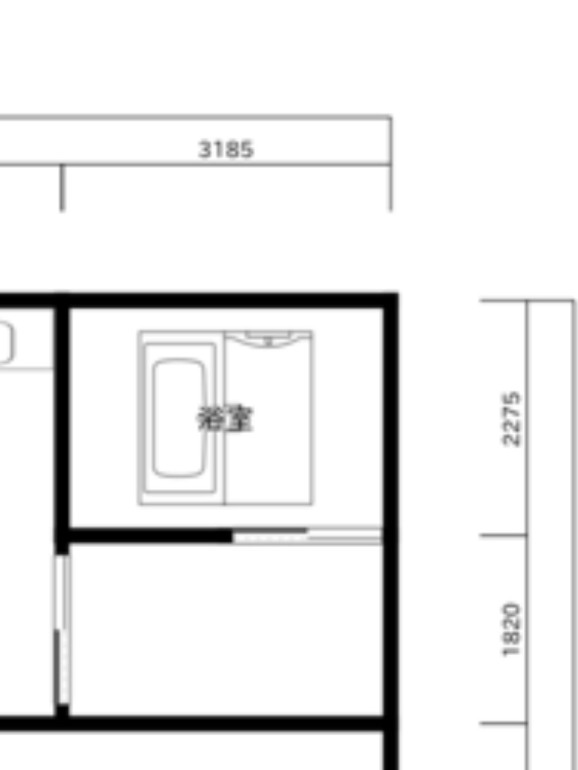
80:風吹けば名無し : 2022/02/23(水)23:14:44.13 ID: T/PBZ64d0.net
いや延床面積288平米て87坪オーバーやぞ
87坪の注文住宅とか億越えやろ
2階のホール部分どないなっとんねん
105:風吹けば名無し : 2022/02/23(水)23:17:33.60 ID: r73vkV1b0.net
>>80
マジかよそんなかかんの?
92:風吹けば名無し : 2022/02/23(水)23:16:04.32 ID: OL6X2XSqd.net
洗面所が広すぎて草
102:風吹けば名無し : 2022/02/23(水)23:17:25.01 ID: 5uuUQWfw0.net
LDKが2つあって草
103:風吹けば名無し : 2022/02/23(水)23:17:26.91 ID: 8/xdYIQcd.net
でけえな
田舎か
119:風吹けば名無し : 2022/02/23(水)23:19:49.42 ID: r73vkV1b0.net
>>103
千葉のクソ田舎や😁🦾
115:風吹けば名無し : 2022/02/23(水)23:19:11.44 ID: r73vkV1b0.net
やっぱりこれ4000万は厳しいよなぁ😭
121:風吹けば名無し : 2022/02/23(水)23:20:12.54 ID: YnjPoQmG0.net
下が南?
二階の部屋とトイレそこでいいの?
128:風吹けば名無し : 2022/02/23(水)23:21:12.86 ID: r73vkV1b0.net
>>121
部屋は迷ってる
トイレは仕方なくそこに置いたのでどこでもいいです
146:風吹けば名無し : 2022/02/23(水)23:24:16.87 ID: YnjPoQmG0.net
>>128
これだと玄関の横う●こ水通るか部屋の中通してく形になるじゃん
1階に合わせるてか配管考えないとあかんよ
154:風吹けば名無し : 2022/02/23(水)23:25:08.35 ID: r73vkV1b0.net
>>146
気をつけます😢
165:風吹けば名無し : 2022/02/23(水)23:27:05.56 ID: YnjPoQmG0.net
>>154
配管とか電気をどう通すかを中心に考えるとまとまってくよ
床通すと直す時金掛かるし不便だなーとか
122:風吹けば名無し : 2022/02/23(水)23:20:32.73 ID: r73vkV1b0.net
もうワイのクソ間取りでは手も足も出ないことが分かったわ
頼むからどこに見積りすればいいかおじえでくだざい!!!!
132:風吹けば名無し : 2022/02/23(水)23:21:55.39 ID: r73vkV1b0.net
さっき別スレでは住友林業をおすすめされました
134:風吹けば名無し : 2022/02/23(水)23:22:20.36 ID: sLt7f/lp0.net
>>132
予算4000万じゃ半分建つかどうかやろw
152:風吹けば名無し : 2022/02/23(水)23:24:55.57 ID: OS7YzUa40.net
>>132
スウェーデンハウスにしろ
155:風吹けば名無し : 2022/02/23(水)23:25:22.56 ID: r73vkV1b0.net
>>152
なぁにそれ
158:風吹けば名無し : 2022/02/23(水)23:26:04.32 ID: ItjymO8ea.net
>>152
あれええの?
なんかショボそう
133:風吹けば名無し : 2022/02/23(水)23:22:18.23 ID: T/PBZ64d0.net
YouTubeでハウスメーカーや間取りの動画見るんでもええわ
間取りにはちゃんとセオリーがあって自分で考えるのは楽しいからやったら素敵な家になるぞ
140:風吹けば名無し : 2022/02/23(水)23:22:46.59 ID: r73vkV1b0.net
>>133
やっぱりちゃんとお手本から学ばなあかんな
137:風吹けば名無し : 2022/02/23(水)23:22:34.76 ID: nGEeiZDDd.net
金が有り余ってるならまだしも
注文住宅にする意味がわからん
141:風吹けば名無し : 2022/02/23(水)23:23:36.33 ID: r73vkV1b0.net
>>137
ちょっと特殊な建て替えなんや
139:風吹けば名無し : 2022/02/23(水)23:22:43.54 ID: T+cyfWlO0.net
どのメーカーもお前の図面よりはまともなもん作るから心配すんな
143:風吹けば名無し : 2022/02/23(水)23:24:04.78 ID: r73vkV1b0.net
>>139
それは百も承知なんだ
それでも最高を追い求めたくなるんだ
142:風吹けば名無し : 2022/02/23(水)23:23:51.29 ID: mZa7pEsx0.net
なんやこれ民泊か
144:風吹けば名無し : 2022/02/23(水)23:24:05.38 ID: fYjOARNV0.net
楽しそうな間取りやな
147:風吹けば名無し : 2022/02/23(水)23:24:28.61 ID: SVqavAGw0.net
やっぱこういうのに限る
148:風吹けば名無し : 2022/02/23(水)23:24:39.57 ID: hNUcSvQHr.net
455で割れない寸法ばっかりやん
そんなフリーソフトあるんやな
まあこの間取りで木造は無理やし関係ないか
166:風吹けば名無し : 2022/02/23(水)23:27:25.51 ID: r73vkV1b0.net
>>148
木造ってそんな寸法守らなあかんのか?CLTでもだめ?
149:風吹けば名無し : 2022/02/23(水)23:24:41.82 ID: dk6Cg4Vj0.net
アイランドキッチンならやめといたほうがええってきいたでなんや不便なんやて
階段は外についとんのか?冬寒いやろ
162:風吹けば名無し : 2022/02/23(水)23:26:52.40 ID: r73vkV1b0.net
>>149
アイランドキッチンそんな不便なんか!?想像つかんのやが
150:風吹けば名無し : 2022/02/23(水)23:24:47.72 ID: nNU1GYOe0.net
なんやこれ
民泊にでもするつもりか?
151:風吹けば名無し : 2022/02/23(水)23:24:48.36 ID: r73vkV1b0.net
いやしかしほんまこれをメーカーに持ち込まんで良かったわ
ガイジがバレるとこやった
153:風吹けば名無し : 2022/02/23(水)23:25:02.25 ID: 5uuUQWfw0.net
1階のトイレはアレなのに2階のトイレは孤立してる謎
157:風吹けば名無し : 2022/02/23(水)23:25:57.48 ID: r73vkV1b0.net
ちなみに左上の扉は客間に繋がっている😁
160:風吹けば名無し : 2022/02/23(水)23:26:28.24 ID: qeGX0zrAd.net
設計やってる立場からいうと素人の間取りほど無駄なものはない
下手なことせずに条件要望だけつたえてプランニングしてもらった方が上手くいくよ
164:風吹けば名無し : 2022/02/23(水)23:27:02.95 ID: 0k651mdT0.net
実際には配管スペースとか必要になったりするし
素人が簡単に作れるもんじゃないと思うぞ
あとどういう動きをするか、という動線は考えろ
172:風吹けば名無し : 2022/02/23(水)23:28:20.67 ID: r73vkV1b0.net
>>164
同線を考えた結果がこのザマなんだ😭
167:風吹けば名無し : 2022/02/23(水)23:27:48.48 ID: kRwFr1hm0.net
メーカーに持ち込むんやったら図面やなくてアバウトにこのへんに何、2階は個人の私室置きたいとかかんたんな図と文章(家族構成、生活の様式、好み、性格など)で伝えるのが一番ええで
176:風吹けば名無し : 2022/02/23(水)23:28:54.89 ID: r73vkV1b0.net
>>167
そうやね、変な背伸びはやめとくわ
168:風吹けば名無し : 2022/02/23(水)23:27:58.15 ID: NvfMfW+h0.net
樹脂サッシのトリプルガラスにして全床暖房にしろってプロが言ってた
178:風吹けば名無し : 2022/02/23(水)23:29:23.48 ID: fYjOARNV0.net
>>168
断熱はすごいだろうけど
185:風吹けば名無し : 2022/02/23(水)23:30:14.31 ID: r73vkV1b0.net
>>178
だめなん?
191:風吹けば名無し : 2022/02/23(水)23:30:57.96 ID: fYjOARNV0.net
>>185
お金かかるだろね、って程度の話や
気にしないで
194:風吹けば名無し : 2022/02/23(水)23:31:16.30 ID: r73vkV1b0.net
>>191
なるほど、ありがとうございます
170:風吹けば名無し : 2022/02/23(水)23:28:04.91 ID: T/PBZ64d0.net
ワイここが好きや
予算4000万円の家で浴室の長辺が3m超えやぞ
中でちっさいマーライオンがお湯吐き出してるレベル
177:風吹けば名無し : 2022/02/23(水)23:28:55.23 ID: ItjymO8ea.net
>>170
草
浴槽ど真ん中におるのもええよな
前の脱衣所的スペースもええわ
182:風吹けば名無し : 2022/02/23(水)23:29:40.53 ID: yTIYy4wW0.net
>>170
風呂の前の部屋マジで謎やわサウナか何かにするんやろうか
186:風吹けば名無し : 2022/02/23(水)23:30:26.93 ID: YnjPoQmG0.net
>>182
脱衣所と洗濯機置場じゃない?
192:風吹けば名無し : 2022/02/23(水)23:31:02.68 ID: ItjymO8ea.net
>>186
洗面台の横に洗濯機置いてね?
トイレと排水近くしたのかなって思ってた
198:風吹けば名無し : 2022/02/23(水)23:31:45.48 ID: YnjPoQmG0.net
>>192
たぶんそれ冷蔵庫やで
208:風吹けば名無し : 2022/02/23(水)23:33:12.91 ID: ItjymO8ea.net
>>198
えぇ…
209:風吹けば名無し : 2022/02/23(水)23:33:35.62 ID: r73vkV1b0.net
>>198
洗濯乾燥機です😡
219:風吹けば名無し : 2022/02/23(水)23:35:07.48 ID: YnjPoQmG0.net
>>209
えぇ…
このスペースが脱衣所なんか…
175:風吹けば名無し : 2022/02/23(水)23:28:51.67 ID: EUx02jt60.net
なんJでアドバイス受けて家作るキチガイ
家族かわいそう
179:風吹けば名無し : 2022/02/23(水)23:29:29.20 ID: r73vkV1b0.net
>>175
まぁまぁあくまでご意見の1つというわけや
181:風吹けば名無し : 2022/02/23(水)23:29:39.34 ID: SEDLHNk90.net
ワイくんの家の間取り図も見てよ
189:風吹けば名無し : 2022/02/23(水)23:30:45.42 ID: r73vkV1b0.net
>>181
パッと見だけでもめっちゃイカしてるやん!
195:風吹けば名無し : 2022/02/23(水)23:31:32.04 ID: 9gFvoRBj0.net
>>181
某ユーチューバーの貼るのやめろw
190:風吹けば名無し : 2022/02/23(水)23:30:53.79 ID: f9fMUZ4t0.net
なんで玄関とリビング直結なんだよ
最悪だろ
200:風吹けば名無し : 2022/02/23(水)23:31:51.20 ID: r73vkV1b0.net
>>190
かっこよくない?😁
207:風吹けば名無し : 2022/02/23(水)23:33:06.12 ID: f9fMUZ4t0.net
>>200
ちょっと開けたら全て丸見え、誰か出入りすると室温が変化、トイレも丸見え
最悪
215:風吹けば名無し : 2022/02/23(水)23:34:54.10 ID: bg2vOpmH0.net
コロナに配慮して玄関に洗面所があるのか?
222:風吹けば名無し : 2022/02/23(水)23:35:37.38 ID: r73vkV1b0.net
>>215
コロナ以外でもとりあえず手洗えるのええなぁと思って
230:風吹けば名無し : 2022/02/23(水)23:36:55.77 ID: f9fMUZ4t0.net
>>222
草
だったら洗面所手前にもってこいよ
218:風吹けば名無し : 2022/02/23(水)23:35:06.22 ID: mBZg5gaE0.net
玄関から直リビングかあ
せめて長い廊下とかにできへん?
これで耐熱性保つの無理やろ
226:風吹けば名無し : 2022/02/23(水)23:36:16.46 ID: r73vkV1b0.net
>>218
検討します😭
227:風吹けば名無し : 2022/02/23(水)23:36:21.09 ID: ItjymO8ea.net
前住んでたマンシオンの他の部屋の間取りあったわ
イッチもこれ参考にしたらええ
234:風吹けば名無し : 2022/02/23(水)23:37:37.09 ID: r73vkV1b0.net
>>227
せっかくの所申し訳ないけどオープンリビングだけは譲れんのや…😢
233:風吹けば名無し : 2022/02/23(水)23:37:13.08 ID: h+FOujGY0.net
新築ええなぁ
ワイは…😔
237:風吹けば名無し : 2022/02/23(水)23:37:55.26 ID: sLt7f/lp0.net
>>233
サマーウォーズのおばあちゃんちみたい
238:風吹けば名無し : 2022/02/23(水)23:38:04.41 ID: YnjPoQmG0.net
>>233
ええやん
土間と縁側ある家素敵やん
246:風吹けば名無し : 2022/02/23(水)23:39:00.12 ID: r73vkV1b0.net
かなり叩かれたけど自分の愚かさが再認識できて有益なスレ立てやったわ
254:風吹けば名無し : 2022/02/23(水)23:40:22.24 ID: fYjOARNV0.net
>>246
実際、プロならイッチの希望を反映すると
どんなリテイクだすか興味ある
257:風吹けば名無し : 2022/02/23(水)23:40:54.57 ID: r73vkV1b0.net
>>254
いつかええのが返ってきたらまたスレ建てるわ
248:風吹けば名無し : 2022/02/23(水)23:39:37.34 ID: yARNhOaa0.net
気密性を重視しろ
冬の寒さが全然違う
249:風吹けば名無し : 2022/02/23(水)23:39:45.30 ID: M/wM2f2LM.net
一級建築士このスレにおるんか?
301:風吹けば名無し : 2022/02/23(水)23:52:10.12 ID: RLmwOlB10.net
イッチ壁に埋め込んであるエアコンとか好きそう
305:風吹けば名無し : 2022/02/23(水)23:52:57.96 ID: vKFYLXTP0.net
これ4000万で建てられる?
土地持ち?
307:風吹けば名無し : 2022/02/23(水)23:53:15.78 ID: bnnohoui0.net
なぜただの素人が大量の客のクレームと優秀な設計者の頭脳によって作られた建売より良い家が設計出来ると思ってしまうんやろか
引用元:https://tomcat.2ch.sc/test/read.cgi/livejupiter/1645624896/
コメント